OPTIE
Te koop: Ruim en comfortabel appartement met garage in het hart van Turnhout.
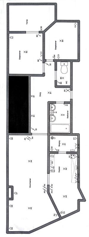
Centraal gelegen in een levendige wijk van Turnhout, op wandelafstand van alles wat de stad te bieden heeft, ligt dit ruime appartement op de eerste verdieping.
Omschrijving:
Bij binnenkomst van dit appartement wordt u verwelkomd door een ruime inkomhal met marmerenvloer, die toegang biedt tot het gastentoilet en verder leidt naar de open, lichte woonkamer van 46m². Deze ruimte heeft een prettig balkon met uitzicht over het stationsplein. De woonkamer is opgedeeld in een zithoek en een eethoek.
De keuken (10m²) is gescheiden van de woonkamer en is uitgerust met een elektrische kookplaat, dubbele spoeltafel, afzuigkap, koelkast en voldoende opbergruimte. Daarnaast is er voldoende plaats voor een grote eettafel. Een praktische berging aan de keuken biedt extra opslagruimte.
Slaapkamers:
Het appartement beschikt over twee ruime slaapkamers (15m² en 14m²), gelegen aan de rustige achterzijde van het gebouw, die beide toegang bieden tot een zonnig terras op het zuiden. De kamers zijn licht en aangenaam.
Badkamer:
De badkamer is volledig betegeld en voorzien van een ligbad, dubbele wastafel en een toilet.
Extra voorzieningen:
Inpandige overdekte garage (verplicht bij te kopen voor €20.000), ideaal voor bewoners met een voertuig, inclusief ruimte voor een verhoogde bestelwagen.
Fietsenberging.
Lift in het gebouw.
Hal en gang met marmeren vloeren en een vestiairekast voor extra opbergruimte.
Locatie:
Gelegen in het centrum van Turnhout, met alles binnen handbereik:
Station op wandelafstand
Winkels en horeca in de directe omgeving
Investering:
Het appartement is momenteel goed verhuurd en is daardoor een aantrekkelijke keuze voor investeerders. Binnen zes maanden zal het echter beschikbaar zijn voor eigen gebruik, wat de mogelijkheid biedt om het appartement als woonruimte te betrekken.
EPC B - 151 kWh/m² en conform elektriciteitsattest!
Infoplicht: Vg (vergunning uitgereikt) Wg (gelegen in woongebied) Gmo (geen rechterlijke herstelmaatregel of bestuurlijke maatregel opgelegd) Gvkr (geen voorkooprecht) Gvv (geen verkavelingsvergunning) P-score: B ,G-score: B
Dit is geen aanbod, alle informatie is steeds onder voorbehoud van materiële vergissingen en/of wijzigingen.
De vermelde oppervlaktes zijn louter indicatief.


























